Id 144787

Москва, Дмитровское шоссе, 100с3/Продажа здания с арендаторами

адрес г. Москва, Дмитровское шоссе, 100с3

Арендный бизнес
Особняк/здание

Окупаемость: 10.3 лет

Доходность:9.68%

340 000 000 RUB | за все

(за 1 м2 — 120 910 RUB)

площадь 2 812.0 м2

QR код Qr код

Предлагается в продажу отдельно стоящее 3х этажное панельное нежилое здание 1985 года постройки с арендаторами в САО по адресу: Дмитровское шоссе, 100с3
Здание находится в 200 метрах до входа в станцию метро Яхромская.
Торговое окружение: Автосалоны, Пятерочка, сетевой фитнес.

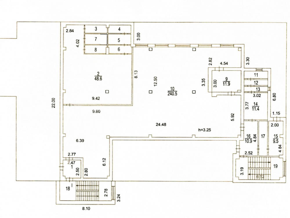
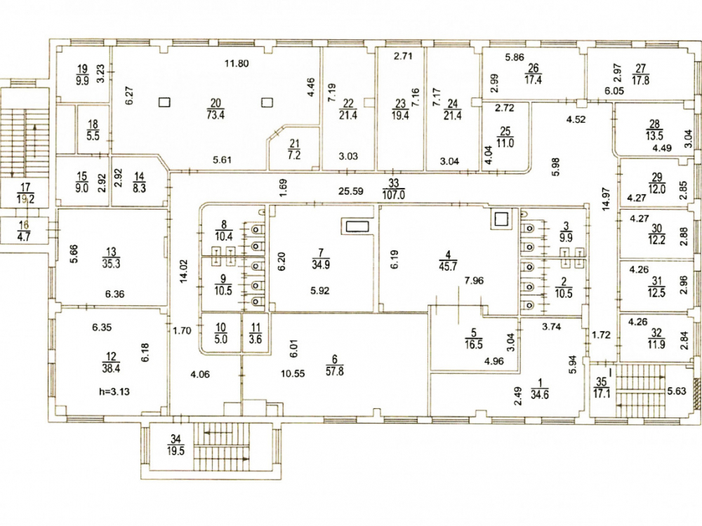
Технические характеристики: общая площадь: 2812 кв.м. (3 этажа+ техэтаж 411 кв.м); все городские коммуникации.
•Планировка кабинетного плана;
•Круглосуточная охрана, система видеонаблюдения, КПП, въезд по пропускам;
•Центральная вентиляция, приточно-вытяжная система вентиляции , в каждом кабинете сплит система;
•Выделенная мощность: 165 кВт
•Два интернет провайдера;
•Паркинг: 30 машиномест;
•3 отдельных входа в здание.
•Земельный участок 990 кв.м. в долгосрочной аренде. Код ВРИ - деловое управление (4.1)

Коммерческие условия:
Стоимость продажи: 340 000 000 рублей.
Стоимость за м2: 120 910 рублей.
Арендаторы: 50 арендаторов-компаний под офисы. ДА на 11 мес,
Общий МАП: 2 752 900 рублей
Общий ГАП: 33 034 800 рублей
Продажа по ДКПН от юр.лица

Технические характеристики

Тип здания: Арендный бизнес,Особняк/здание

Общая площадь: 2812  м2

Этаж: 1

Всего этажей: 3

Электрическая мощность: -

Высота потолков: -

Парковка: -

Коммерческие условия

Цена за все: 340 000 000 RUB

ФОРМА ВЛАДЕНИЯ: -

Общий МАП: 2 752 900 RUB (данный МАП является минимальным, при оптимизации арендаторов арендный поток можно значительно увеличить)

Общий ГАП: 33 034 800 RUB

Окупаемость: 10.3 лет

Доходность: 9.68%

карта

Расположение

Адрес: г. Москва, Дмитровское шоссе, 100с3

Округ: Северный административный округ

Близость метро: Селигерская

Транспортная доступность: -

Окружение

Торговое окружение: -

Адрес:

г. Москва, Дмитровское шоссе, 100с3

Округ:

Северный административный округ

Близость метро:

Селигерская

Транспортная доступность:

-

карта

Торговое окружение:

-

Общая площадь:

2812  м2

Этаж:

1

Всего этажей:

3

Тип:

Арендный бизнес,Особняк/здание

Электрическая мощность:

-

Высота потолков:

-

Парковка:

-

ФОРМА ВЛАДЕНИЯ:

-

Цена за все:

340 000 000 RUB

Общий МАП: 2 752 900

(данный МАП является минимальным, при оптимизации арендаторов арендный поток можно значительно увеличить)

Общий ГАП:

33 034 800

Окупаемость:

10.3 лет

Доходность:

9.68%

Шаклеина Юлия

Ваш брокер по работе с клиентами

Найдите лучшее место
для жизни, бизнеса, инвестиций

Оставьте свои контакты — с вами свяжется руководитель отдела для презентации нужного вам объекта

Похожие объекты